

Typ av bostad
2 rok
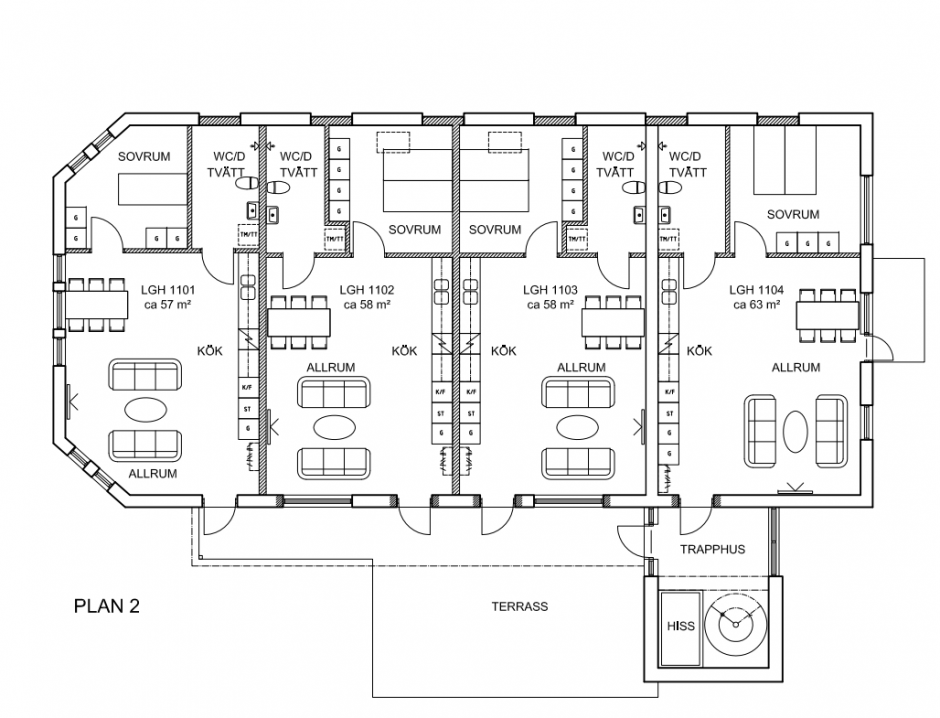
Fastighet
Adress
Malmgatan 13
Postadress
24131
Lägenhetsnr
1101
Våningsplan
2
Antal rum
2
Yta
57.00 m2
Diskmaskin
Ja
Tvättmaskin/torktumlare
Ja
Balkong/uteplats
Ja
Hiss
Ja
Hyra
8 440 kr
Ledig från
2026-01-01
Bredbands-avgift 50 Mbit tillkommer med 170 kr per månad.
Kabeltv-avgift tillkommer med 85 kr per månad.